Die anstehende Großmaßnahme besteht aus der Erneuerung der Fahrbahnen mit einem lärmarmen Asphalt, dem Bau von Lärmschutzwänden, dem Ersatzneubau der Bauwerke Mühlen- und Kronenweg, der Errichtung zweier Entwässerungs-becken (Nord und Süd) und dem Bau einer Pumpstation in der Ortslage Wesseling.
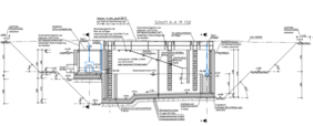
Das Regenklärbecken, welches durch uns im 1. Bauabschnitt hergestellt worden ist, gehört zur Beckenanlage Nord und ist dem Versickerungsbecken Nord vorgeschaltet. Bei dem herzustellenden Bauwerk handelte es sich um ein nach oben offenes, rechteckiges Ortbetonbecken, einschl. ebenfalls rechteckigem Trennbauwerk (16m Länge x 5m Breite x 6m Tiefe). Der Zulaufbereich des Beckens fungiert als Schlammsammelraum.
Weiterer Vertragsbestandteil der Baumaßnahme war die Herstellung der flachgegründeten Winkelstützwand in Ortbetonbauweise. Im Gesims der Stützwand wurden im Raster von 2m Schlaufenanker nach statischen Erfordernissen eingesetzt, um die Stahlpfosten aus HEA-220 für die Lärmschutzwand anzuschließen. Die Lärmschutzwand wurde abschnittsweise auf der hergestellten Winkelstützwand aufgesetzt.
Ausführung als Arbeitsgemeinschaft.





