Zum Hauptinhalt springen

Stauraumkanal und Pumpwerk Wesseling

Bauzeit
Oktober 2022 - Juli 2023
Auftragssumme
ARGE: 2,9 Mio. EUR netto
Auftraggeber
Die Autobahn GmbH des Bundes

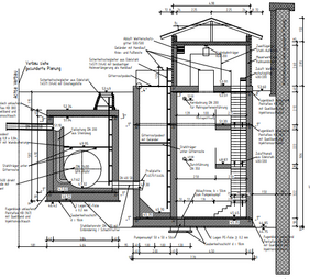
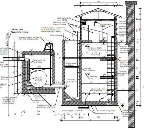
Im Zuge des 6-streifigen Ausbaus der A555 errichten wir für die Autobahn GmbH des Bundes den Bau einer Entwässerungseinrichtung „Stauraumkanal und Pumpwerk“ im Stadtgebiet Wesseling an der Autobahn.

Ausführung als Arbeitsgemeinschaft.